Ножничный подъемник – что такое ножничный подъемник: виды и характеристики
Ножничный подъемник — мобильное приспособление, способное поднимать и перемещать грузы, людей в вертикальной плоскости. Основная область использования оборудования — погрузочно-разгрузочные операции, помимо этого — монтажные, строительные, отделочные, другие работы. Малые габариты подъемника дают возможность выполнять нужные действия на участках любой площади.
Конструкция ножничного подъемника
Ножничный подъёмник состоит из грузовой площадки, двигающейся в вертикальном положении, и опоры, складывающейся крест-накрест. Дополнительным элементом конструкции выступает приспособление обеспечивающее плавность остановки, аварийное опускание рабочей поверхности, защитудвигателя от перегрузки, регулирующее высоту подъема, скорость движения платформы.
Подъемник оснащается рамой безопасности. Если под платформу попадают посторонние предметы, она сразу останавливается. Оборудование производится из крепких, износоустойчивых профильных труб, комплектуется надежными рабочими компонентами. Ножничный подъёмник может дополняться:
- выдвижными платформами;
- откидными бортами;
- сетчатым ограждением;
- световой индикацией;
- кабиной, оснащенной дверями или рольставнями;
- системой управления поэтажного типа.
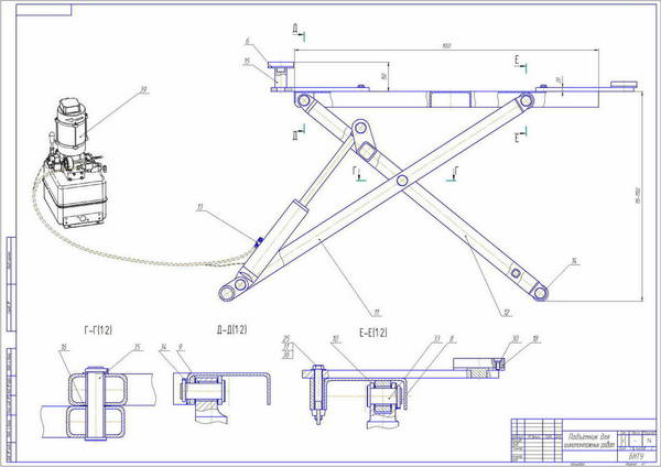
Работает устройство от гидравлического привода, состоящего из насоса и электрического или дизельного двигателя (существуют агрегаты, оснащенные сразу двумя двигателями).
Подъем/опускание осуществляются посредством гидроцилиндра и системы рычагов, запускается движение пультом.
Подъемный стол оборудован маслостанцией, которая подает рабочую жидкость в гидравлические цилиндры, приводя подъемный механизм в движение.
Обратите внимание
Устройство одинаково успешно используется как на открытых площадках, так и в помещении. Для выполнения внутренних работ применяется оборудование, работающее от электрического двигателя, не имеющего вредного для людей выхлопа.
В зависимости от типа конструкции устанавливаться гидравлический подъемник может как на фундамент, так и в специально подготовленный приямок. Высота углубления рассчитывается исхода из высоты приспособления в собранном виде. Важно чтобы приемная площадка оборудования, после монтажа в приямок, максимально совпадала с уровнем пола.
Это гарантирует беспрепятственный заезд тележек на платформу в процессе выполнения погрузочно-разгрузочных действий.
Основные виды ножничных подъемников
Подъемники делятся на:
Состоят из опоры и возвратно-поступательного механизма. Агрегат оснащен выключателем, позволяющим задать нужную высоту, системой защиты платформы от перегруза. Рабочая высота таких подъемников варьируется в пределах 20 метров. Это делает приспособление универсальным, позволяет использовать его для разных целей.
Оснащены колесами. Методом буксировки их можно доставлять к месту выполнения работ, расширяя сферы применения установки.
Предназначены для крупных открытых строительных площадок. Вседорожные колеса установки заполнены полиуретаном, исключающим случайные проколы шин. Гидравлические опоры, грузоподъемная платформа, полный привод позволяют использовать оборудование на покрытии любого типа, как на рыхлом грунте, так и бездорожье, также на поверхностях имеющих уклон.
Многообразие модификаций дает возможность подобрать оборудование требуемых габаритов и эксплуатационных характеристик для выполнения производственных задач разной сложности.
Неоспоримыми преимуществами ножничного подъемника можно назвать:
- удобство транспортировки;
- высокая грузоподъемность;
- простота монтажа;
- функциональная надежность;
- легкость обслуживания;
- безопасность использования.
Варианты эксплуатации ножничных подъемников
Гидравлический подъемник, благодаря характерным конструктивным особенностям, приобрел широкую популярность во многих промышленных отраслях. Основные сферы использования оборудования:
- Склады, логистические центры. Устройство дает возможность быстро и аккуратно загрузить/разгрузить грузовой автомобиль, переместить продукцию между многоуровневыми складскими секциями, разными этажами здания.
- Строительные площадки. Подъемник позволяет выполнять оформление фасадов, покрасочные, отделочные, монтажные, прочие виды работ, подъем материалов на объектах различной этажности. Для данного вида работ чаще используются самоходные и передвижные подъёмники.
- Автосервис. Оборудование широко используется в мастерских в процессе выполнения диагностики, ремонтных и обслуживающих работ. Устройство используется для перемещения автомобилей в автосалонах, подземных и многоэтажных гаражах, крупных автоконцернах.
- Производственные подразделения. С помощью подъемного стола появляется возможность поднять или опустить собираемое изделие на требуемую высоту. Тем самым облегчается и ускоряется процесс сборки сложного оборудования.
- Перемещение грузов и людей между этажами здания, склада. Оборудование выполняет функции грузопассажирского лифта. В данном случае подъемник комплектуется кабиной или ограждением.
Особенности использования
В процессе эксплуатации подъемника стоит соблюдать меры безопасности. Особенности расположения груза на подъемной площадке влияют на эксплуатационные параметры устройства.
В идеальном варианте груз должен быть равномерно распределён по площади платформы. Только в этом случае подъемник может поднять груз номинального объёма.
Если груз занимает половину подъёмника по длине, то его масса должна быть 50% общей грузоподъемности.
Важно
Если груз занимает половину платформы по ширине, то его вес должен быть не больше 33% общей грузоподъемности. Во время проведения погрузочно-разгрузочных манипуляций, по мере возможности, стоит избегать нагрузок на платформу в горизонтальной плоскости. Соблюдение эксплуатационных норм обеспечит производственные процессы безопасностью, эффективностью.
Сделать ножничный подъемник своими руками – чертежи и инструкция – Сто вопросов сто ответов
Использование специальной техники в разнообразных сферах значительно облегчает процесс производства, ремонтные работы или строительные процессы. Насыщена такими устройствами и отрасль ремонта автотранспорта.
Ножничный подъемник – незаменимый атрибут СТО и ремонтных мастерских, который облегчает труд мастеров. Без него трудно представить полноценную работу и положительный результат в итоге. Но часто такой механизм используется и для других целей:
- строительно – монтажных работ;
- как вариант грузоподъемника;
- бытовых целей.
Стоимость устройства не позволяет приобретать его необдуманно, но в том случае, если сделать подъемник ножничный своими руками, то его себестоимость значительно снизится. Если техника будет редко востребована, то ее можно сдавать в аренду, что со временем окупит средства, вложенные на изготовление.
Подъемный стол своими руками: цель оправдывает средства?
Самодельный ножничный подъемник своими руками требует особых навыков и знаний. Если механизм будет часто задействован в работе, то эти вложения можно считать оправданными. Помимо того, что не нужно беспокоиться о наличие смотровой ямы при ремонтных работах автомобиля, такое устройство имеет ряд преимуществ:
- позволяет производить сварочные и рихтовочные работы;
- с его помощью замена составных частей авто происходит намного быстрее и удобнее. Ходовая часть, тормоза, подвеска – это неполный список тех элементов, которые удобнее поменять с таким оборудованием;
- шиномонтаж и любые работы с колесами;
- любые виды осмотров автомобиля.
В том случае, если все эти виды работ задействованы, то рациональным будет сделать ножничный подъемник своими руками и сэкономить значительную сумму.
Ножничный подъемник своими руками: чертежи – всему голова
Подъемные столы, чертежи которых заранее подготовлены, изготавливаются намного быстрее. Поэтому важно предварительно продумать, какие размеры будет иметь техника. Изучение заводских моделей позволит сделать анализ и провести аналогию для изготовления своего варианта с учетом их положительных свойств и исключая недостатки – все варианты ножничных подъемников http://techobslift.ru/.
Если чертеж не разрабатывался под конкретную модель, то невозможно полностью скопировать его, ведь размеры индивидуальны. Но общая конструктивная мысль позволит сделать ножничный подъемник своими руками быстрее и качественнее.
Сделать подъемный стол своими руками по индвидуальным чертежам может только специалист, и не каждый мастер сможет самостоятельно начертить уникальную модель. Зачастую за чертежами обращаются к профессионалу с инженерным образованием.
Ножничный подъемный стол своими руками: базовые требования
Чтобы ножничный стол своими руками соответствовал стандартам, к его изготавливанию предъявляется ряд требований. Игнорирование этих норм может негативно повлиять на работу механизма, что является угрозой безопасности для мастера.
На первоначальном этапе следует определиться, на какую высоту будет подниматься устройство. Это может быть небольшое расстояние, а может и высота в 2-3 метра. От этого показателя напрямую зависит меры безопасности, которые нужно соблюдать.
Также важными нюансами для детального анализа являются:
- выбор привода;
- разработка системы подъемного механизма;
- выбор варианта управления и регулировки;
- подбор возможности крепления механизма к полу.
Последняя позиция подразделяется на стационарные модели, которые закрепляются и бетонируются, и самоходные подъемники. Наиболее безопасным для состояния имущества и здоровья людей будет первый вариант.
Грузовые ножничные подъемники: подбор привода
Подъемник ножничного типа своими руками градируется в зависимости от привода. Он может быть гидромеханическим иди электромеханическим. Первый вариант предусматривает наличие системы гидравлических цилиндров и двигателя с помпой. Такие модели отличаются высокой грузоподъемностью и цельность конструкции. Арматура сделана по чертежам, что не позволяет “гулять” грузу.
Модели с электромеханическим приводом имеют меньшую грузоподъемность и часто дают сбои в работе. Затраты на дополнительный ремонт может негативно сказаться на окупаемости механизма.
Также важно уделить внимание в процессе разработки таким элементам:
Поэтапное моделирование и изготовления ножничного подъемника минимизирует брак в работе и делает результат достойным.
Техническая база и этапы выполнения работы
Для осуществления своей задумки необходимо подобрать базу инструментов, приобрести расходные материалы и выделить основные этапы работы. Под рукой нужно будет иметь такие инструменты:
- сварочный аппарат;
- перфоратор;
- болгарка;
- напильник.
Из расходных материалов пригодится швеллер, листы металла толщиной 1 см, ролики с эксцентриком, толстостенные трубы.
На первом этапе следует сварить уголки и листы металла между собой для получения частей конструкции. Условно подъемник можно разделить на верхнюю и нижнюю часть, которые соединены направляющими. Чтобы собрать этот элемент предварительно нужно сделать или использовать уже готовые втулки.
После этого для усиления основы приваривается квадратный профиль.
Дальше необходимо заняться направляющими, которые изготавливаются из толстостенных труб. Толщина металла равняется 4 см, а общая длина направляющей должна быть приблизительно 30 см.
Дальше наступает этап изготовления “лап”, с помощью которых механизм можно собрать воедино. Для это используют профиль в 5 мм. На конце этого элемента вставляются втулки диаметром 30 мм, чтобы можно было вмонтировать направляющие.
Важным моментом является монтаж подъемного механизма. В примитивных моделях используется простой домкрат. Чем выше он может поднять устройство, тем практичнее оно будет.
Затем следует этап сварки всех элементов в одну конструкцию. Очень важно, чтобы ее не “повело” и был сохранен баланс.
В нижней части конструкции монтируются ролики с эксцентриком, если механизм планируют передвигать, а направляющие смазываются солидолом или похожим веществом. Важно не красить их, чтобы не нарушить подвижность.
Совет
Такие механизмы имеют большой вес и металлические элементы в конструкции, что грозит травмами при неправильной эксплуатации. Устройство должно иметь оперативную систему аварийного подъема – опускания, чтобы в случае чрезвычайной ситуации минимизировать ущерб.
Следующие материалы:
Предыдущие материалы:
>
Подъёмники ножничные купить в Симферополе в интернет-магазине «ELM327rus»
Ножничный подъёмник автомобильный представляет собой устройство для ремонта, обслуживания транспортных средств при поддержании их на нужной высоте.
Специальная установка служит для поднятия автомобиля на высоту с помощью системы рычагов, которые приводятся в действие гидравлическим приводом. При этом платформа поднимается только вертикально, поэтому она не требует наличия значительного пространства для работы.
В автомастерских используют в основном такие типы подъёмников:
- Ножничного типа гидравлические.
- Автоподъёмники одно- двух- или четырёх стоечные.
- Плунжерные подъёмники для транспортных средств.
Автомобильные ножничные подъёмники получили высокое распространение благодаря своим преимуществам:
- Довольно небольшим размерам.
- Хорошей надёжности.
- Возможности мобильного использования (бывают стационарные и передвижные модели).
- Простого применения.
- Значительной экономии времени персонала.
Конструкция
Конструкция подъёмника нехитрая: она состоит из платформы с системой рычагов (т.н. ножниц). В составе конструкции также есть гидравлический привод, который получает питание от сети переменного тока.
Такое устройство очень функционально для выполнения погрузки и разгрузки. В комплектации устройства есть специальная рама безопасности, которая моментально останавливает гидравлический привод в случае попадания сторонних предметов под платформу.
Характеристики
На рынке существует огромное количество модификаций ножничных подъёмников. Они отличаются по таким характеристикам:
- Максимальный вес поднимаемого автомобиля.
- Максимальная высота, на которую может подниматься платформа.
- Скорость подъёма с максимальной нагрузкой.
- Мощность электрического двигателя привода.
- Размеры платформы.
- Требования к основанию, на которое монтируется устройство.
- Вес устройства.
Автомобильные подъёмники
Ножничные автомобильные подъёмники на сегодняшний день стали самым популярным типом оборудования для подъёма автомобилей с целью ремонта в профессиональных автомастерских. Он также очень экономен, занимает немного площади СТО.
Они широко применяются для шиномонтажных работ, регулировки развала-схождения, разнообразных ремонтов транспортных средств, выставления углов колёс и т.д.
Особенности автомобильных подъемников: виды автоподъемников, критерии выбора
Современную СТО сложно представить без такого необходимого оборудования, как подъемники для машин.
Они помогают создать необходимые условия не только для проведения осмотра и качественной диагностики автотранспорта, но и для выполнения ремонтных работ и технического обслуживания.
Их часто используют и для решения многих других задач, с которыми обращаются автомобилисты — выполнение слесарных работ, кузовного ремонта, восстановление ходовой части. Незаменимы автомобильные подъемники и на шинных сервисах.
Эти приспособления значительно упрощают выполнение ремонта двигателей и обслуживание электрической части автомобиля.
Ведь не всегда оказывается достаточно смотровой ямы, чтобы можно было выполнить все виды работ, связанных с обслуживанием автомобилей.
Подъемники для машин, в высокой востребованности которых можно не сомневаться, сегодня представлены в большом количестве вариантов. Есть среди них и самые популярные, о которых наверняка наслышаны многие автовладельцы.
Характеристики автоподъемников
Для эффективного выполнения возложенных на автомобильные подъемники задач они должны обладать определенной:
- скоростью подъема;
- грузоподъемностью;
- высотой подъема;
- клиренсом;
- конструкцией.
Под грузоподъемностью понимается вес транспортного средства, которое подъемник может поднимать без риска перегрузки. Используемое на станциях техобслуживания оборудование должно иметь грузоподъемность от 1,5 до 5 тонн.
Другой важной характеристикой является скорость подъема, по которой многие подъёмники отличаются незначительно. Обычно они поднимают автомобиль за 1−2 минуты. Логично ожидать, что электромеханические подъемники смогут быстрее поднимать автомобиль. У большинства разновидностей оборудования максимальная высота подъема ограничена двумя метрами.
Если говорить об общей высоте, то она составляет не более 4 м. На практике же, как правило, не требуется осуществлять подъем транспортного средства на значительную высоту для выполнения необходимых работ.
Обратите внимание
Если только речь идёт об автомобилях с высокой крышей, может потребоваться поднять автотранспорт на высоту от 4000 до 4200 мм.
Отдельную группу подъемников образуют агрегаты, используемые в шиномонтажных мастерских, которые позволяют поднимать транспорт на небольшую высоту.
Под клиренсом подъемников подразумевается минимальная высота, на которой располагается оборудование при опущенных лапах. У большинства агрегатов этот параметр имеет значение от 95 до 110 мм. Но также встречаются и низкопрофильные механизмы, у которых показатель клиренса равен 75−90 мм. Чаще всего системы этого типа используются при подъеме транспорта с малым клиренсом или обвесом.
Требования по безопасности
Во время использования подъемников автомобильных необходимо соблюдать правила безопасности. Это делается главным образом для того, чтобы избежать риска падения оборудования и возникновения травматических ситуаций, связанных с нерабочим состоянием электрических механизмов. Особенно это актуально для передвижного оборудования, а также устройств, которые эксплуатируются на улице.
Виды конструкции
Тип исполнения подъемника предопределяет принцип его работы. Также от устройства зависят и особенности крепления транспортного средства на подъемном механизме. В зависимости от вида привода агрегаты для подъема автомобилей могут быть разделены на несколько видов:
- Электромеханические.
- Гидравлические.
- Электрогидравлические.
- Пневмогидравлические.
- Пневматические.
В зависимости от устройства опорных элементов принято выделять стоечные, плунжерные подъемники и ножничные агрегаты.
Каждый вариант автоподъёмников для автосервиса обладает собственными конструктивными особенностями. Также они могут отличаться и сферой применения. На это оказывает влияние тип выполняемых сервисных работ и класс машин, обслуживанием которых занимается конкретная станция.
В последнее время всё чаще на СТО можно встретить электрогидравлические агрегаты. Выбор в их пользу вполне закономерен, если учесть наличие у них большого количества преимуществ перед электромеханическими аналогами.
К примеру, в этих системах отсутствуют механические детали и узлы, обладающие повышенным износом. Всё это положительным образом сказывается на надежности и долговечности оборудования.
К тому же такие механизмы имеют более плавный рабочий ход, обладают большей экономичностью, просты в обслуживании и позволяют с меньшими усилиями опускать автомобильный транспорт.
Этот вид автомобильных подъемников поставляется со специальными опорами, которые позволяют многократно повысить уровень безопасности оборудования.
Стоечный подъемник
В этих агрегатах большая часть нагрузки приходится на вертикальную стойку. Для крепления нижней части, которая выполняет функцию поддержки, используют анкерные болты, вкручиваемые в бетонное основание пола.
Сбоку у этих систем предусмотрен подъемный механизм, который бывает электромеханического или электрогидравлического типа. Имеется сбоку и дополнительное крепление.
Важно
Иногда можно встретить стоечные агрегаты, выполненные в мобильном варианте для более легкого передвижения.
В зависимости от количества стоек эти системы могут быть классифицированы на три типа:
- одностоечные;
- двухстоечные;
- четырехстоечные.
Одностоечное оборудование
Главными достоинствами этих систем является высокая универсальность и мобильность. Чаще всего их можно встретить на небольших СТО и сервисах гаражного типа. Эти механизмы доступны в стационарном и передвижном вариантах.
Первые имеют грузоподъемность до 2 тонн. Что же касается мобильных моделей, то у них показатель грузоподъемности составляет 250 кг.
Особенности конструкции таких агрегатов позволяют одновременно использовать не более 4 мобильных подъемников для легковых машин.
При использовании этих систем подъем автомобиля осуществляется за колёса или за пороги. Транспорт поднимается с одной или сразу с двух сторон. Всё зависит от количества имеющегося оборудования. Подъемные механизмы одностоечного типа часто используются на СТО и автомойках. Довольно часто ими оборудуются и шиномонтажные мастерские.
Двухстоечные подъемники
Являются не менее востребованными механизмами, чем одностоечные модели. Их можно использовать для выполнения различных задач — ремонта, диагностики и технического обслуживания. В конструкции этих систем отсутствует платформа, что позволяет оставить шасси в подвешенном состоянии.
В зависимости от типа привода эти механизмы можно разделить на электромеханические и электрогидравлические. Первые более удобные в использовании, а вторые отличаются повышенным уровнем безопасности, надежности и долговечности. У таких систем показатель грузоподъемности составляет 8 тонн.
На СТО, как правило, используются пятитонные модели.
В зависимости от типа развесовки принято выделять симметричные и асимметричные механизмы. На основании такого признака, как метод синхронизации, подъемники могут быть классифицированы на модели с нижним или верхним типом.
Четырехстоечные агрегаты
Главной особенностью этих изделий является высокая грузоподъемность. Чаще всего их можно встретить на грузовых СТО. Относящиеся к этой группе системы можно классифицировать в зависимости от грузоподъемности и длины платформы.
Системы, у которых размеры не превышают 5000 мм, отлично подходят для подъёма легковых авто. Основными их достоинствами являются простота и надежность, демократичная цена, возможность обслуживания автотранспорта с длинной базой, использования для подъема грузовых автомобилей.
Из недостатков можно выделить только не слишком удобную перемычку и большие размеры.
Ножничные автоподъемники
Механизмы этого типа используются для технического обслуживания автомобилей и для регулировок. Достоинством является возможность установки вровень с поверхностью пола. Благодаря особому исполнению принимают компактный вид в сложенном состоянии.
Многие модели осуществляют подъем автотранспорта с использованием гидравлического привода. Последний обеспечивает им такие достоинства, как полная бесшумность во время работы, плавность хода, высокую долговечность.
Подъемники этого типа бывают двух видов — стационарные и мобильные. Последние используются для оперативного обслуживания за пределами мастерской. Эти подъёмники имеют грузоподъемность на уровне 5 тонн.
Главным недостатком является высокая стоимость.
Плунжерное оборудование
Системы этого типа предназначены для технического обслуживания и ремонта не только легкового, но и грузового автотранспорта.
Они выпускаются в нескольких вариантах — с одним, двумя и четырьмя плунжерами. Есть модели с платформой и оборудованные лапами. Помимо этого можно встретить системы с напольным монтажом.
Однако чаще всего используются системы, устанавливаемые в специальное углубление в полу.
Совет
Несущая часть у механизмов располагается на верхних торцевых частях. Благодаря этой схеме подъемники обеспечивают наиболее удобные условия для проведения работ с возможностью доступа к автомобилю с любой из сторон.
Главными достоинствами является высокий уровень надежности, удобство в использовании, плавность подъема и опускания, низкий уровень шума, широкий модельный ряд. Эти системы можно использовать вместе со стендами по регулировке развала.
Из минусов можно отметить высокую стоимость и трудности при монтаже.
Мобильный колонный подъемник
Эти системы для подъема автотранспорта владельцы СТО и шинных мастерских выбирают из-за высокой степени универсальности и экономичности при обслуживании тяжелых грузовиков. Чтобы воспользоваться такими подъемниками, не нужно особым образом подготавливать фундамент для их монтажа. Они могут быть установлены в любом помещении.
Весомым преимуществом систем является мобильность, благодаря чему можно сэкономить немало полезной площади помещения. Используемый в конструкции электронный блок позволяет выполнять синхронизацию. Эти системы имеют грузоподъемность от 12 до 80 тонн.
Специальные устройства для автомобилей
К этой категории относят системы, предназначенные для шинного сервиса, проведения кузовных работ, обслуживания мотоциклов.
Системы для шиномонтажа выполнены в виде оборудования с платформой, с помощью которого можно быстро и с минимальными усилиями произвести замену колёс. В зависимости от типа привода выделяют пневматические, электрогидравлические и электромеханические механизмы. В этих подъемниках используется конструкция ножничного типа.
Агрегаты для кузовных работ очень удобны в эксплуатации. С их помощью многократно повышается производительность при проведении работ. Эти системы имеют возможность полной синхронизации. Доступны в двух вариантах — с пневматическим и пневмогидравлическим приводом.
Принципы выбора
Подъемники для автомашин — один из важных механизмов, который должна иметь каждая станция техобслуживания. Все они сегодня предлагаются в разных вариантах исполнения и обладают различными характеристиками, которые обязательно должны учитывать покупатели.
Грузоподъемность является одним из важных критериев выбора автомобильного подъемника. В то же время необходимо обращать внимание и на скорость и высоту подъема, конструктивное исполнение. От этого зависит не только эффективность и безопасность выполнения работ, но и удобство использования подъемников.
Последнее особенно актуально для владельцев частных СТО, которые не всегда могут найти место для подъемников стандартного типа. Поэтому им нужно с особой внимательностью выбирать эти механизмы, ища среди всего разнообразия решения, в наибольшей степени удовлетворяющие их запросам.
Подъёмник для легкового автомобиля своими руками: 2 простых варианта
Наиболее экономным вариантом бытового подъёмного механизма является агрегат двухстоечной конструкции, оснащённой электрическим, электрогидравлическим или гидравлическим приводом.
В подъёмнике с первым типом привода в стойках размещаются резьбовые валы с перемещающейся несущей гайкой, закреплённой на подъёмной стальной лапе.
Существуют другие модели винтовой конструкции, в составе которых содержится 1, 3, 4 стойки.
Чтобы собрать дешёвое, но производительное устройство для собственного пользования, необходимо понять принцип действия прибора заводского изготовления. Изготовить подъёмник автомобильный для гаража своими руками можно из следующих компонентов:
- 3 стальных уголка 750×750×8 мм;
- редуктор червячный;
- стальная плита толщиной 10 мм;
- 2 цепи с крупными тонкими звеньями из проволоки диаметром 30 мм;
- крюк;
- трос толщиной 5 мм;
- две шпонки «звёздочка».
При выборе составляющих элементов следует учесть, что минимальная грузоподъёмность агрегата с передаточным показателем 60 кг должна быть 300 кг.
Сборка подъёмного устройства
Самодельный подъёмник в автосервисную мастерскую собирается быстро и просто. Рабочий процесс состоит из 8 шагов:
- стальные гнутые уголки нужно закрепить на противоположных плоских стенках помещения так, чтобы капот легкового автомобиля оказывался под ними;
- на уголки необходимо установить стальную плиту и закрепить болтами М8;
- установить на плиту редуктор;
- закрепить шпонку на приводном редукторе вала;
- в плите просверлить отверстие и пропустить цепь, замкнуть в форме кольца;
- закрепить шпонку меньшего размера на выходном вале редуктора;
- просверлить в плите два отверстия, пропустить вторую цепь;
- первый конец приводной цепи зафиксировать на малой шпонке, второй оснастить крюком.
Используя профессиональные чертежи, ножничный подъёмник своими руками можно изготовить очень легко и быстро. Самодельный подъёмник в гараж имеет рычажную систему передач в виде ножниц. Рабочие моменты осуществляются гидравлическим приводом, работающим от электрического двигателя.
В процессе сборки конструкции мастер может столкнуться с рядом проблем относительно техники безопасности. Исключить падение, прогиб и поломку домкрата поможет правильный выбор материала для комплектующих деталей.
Гаражное подъёмное устройство собственной сборки должно обладать запасом грузоподъёмности и легко выдерживать вес авто в течение длительного времени.
Обратите внимание
При изготовлении оборудования следует установить стопорный механизм, с помощью которого изготовленный своими руками автомобильный подъёмник удерживает груз в случае возникновения нештатной ситуации. Периодически должен производиться технический осмотр и обслуживание резьбовых валов, несущих гаек, шлангов и цилиндров.
Настройка рабочих параметров устройства осуществляется следующим образом:
- удалить крепления, фиксирующие раму и двигатель автомобиля;
- подвести трос под мотор, набросить петли на крюк;
- перебирая цепь, натянуть трос, медленно поднять груз на нужную высоту;
- переместить двигатель на ремонтный стол.
Автомобильный подъёмник-опрокидыватель
Если отсутствует возможность оборудовать в гараже смотровую яму с подъёмником, механики рекомендуют устроить опрокидыватель-подъёмник для авто своими руками.
Чертежи установки лучше заказать у профессионала. Изготавливается приспособление из листового металла и квадратного профиля с помощью сварки.
Грузоподъёмная конструкция обладает прочностью, безопасностью и простотой в эксплуатации.
В качестве основного рабочего агрегата автоподъёмник-опрокидыватель содержит реечный, гидравлический или червячный домкрат. Пятка прибора с большими рёбрами жёсткости может наклонить авто весом 2.5 тонны на 45°.
Для прочности платформа устройства с подвижными механизмами оснащается рёбрами жёсткости толщиной металла до 7 мм, уголками и квадратным толстостенным профилем.
Из металла также изготавливается опорный гнутый уголок, нижняя площадка и опорный брус.
Изготовить механический опрокидыватель можно из набора необходимых компонентов:
- толстостенная квадратная труба 0,5×0,5 см или уголок с полкой;
- два пальца;
- четыре втулки;
- фрагменты металла для косынок.
Детали скрепляются между собой сваркой, кронштейны с шарнирами соединяются с платформой, после этого подъёмник готов к работе.
Вывод
Для частной станции технического обслуживания идеально подойдет недорогой и производительный гидравлический автоподъёмник ножничного типа.
Имея конструкцию в собственном распоряжении, владелец легкового автомобиля получает возможность проводить ремонтные и профилактические работы на кузове, заменять ходовую часть, подвеску, тормозные колодки и детали трансмиссии.
Сделать подъёмник своими руками можно по специально разработанной технологии.
Пожалуйста, оцените этот материал!
(7
Установка ножничного подъемника своими руками — DRIVE2
Ножничный подъемник это лучший гидравлический подъемники для малых помещений, отлично подходит для гаражей с узкими проемыми, именно такой универсальный ножничный подъемник подходит для наших гаражных кооперативов. В данной статье мы рассмотрим полную установку гидравлического подъемника в наш гараж:
Ножничный подъемника пример
Начинаем.
Первое что нам нужно это купить ножничный подъемник, самому конечно сделать можно, конструкция не сложная, подъемник сделан из компановки системы рычагов (которые и называют “ножницы”) гидравлический привод, ну и конечно само питание которого осуществляется от сети переменного тока, только следует помнить что компоненты для создания подъемника своими руками будут стоять дороже 2двух новых подъемников. Поэтому наш выбор покупка нового.
Как правильно выбрать ножничный гидравлический подъемник
Выбирая подъемник данного типа следует обратить внимание на 2 фактора это грузоподъёмность как правила это 3 тонны, но есть и слабее 2.3 и даже 1.9 тонны, такие подъемники покупать не следует по причине того что средний вес легкового автомобиля это 1.
Важно
5 тонны, заявленная грузоподъемность от производителя как правила не всегда правдива, зачастую подъемники с малым тоннажем долго не служат. Хотя цена привлекает, но помните скупой платит дважды.
Второй факт это максимальная высота подъёма платформы, это тоже один из важных факторов по причине что слишком низкая высота, не даст вам должнего просвета для осмотра днища автомобиля.Как правило данной проблемой страдают Китайские подъемники. Нормальная высота для осмотра будет примерна 1850 мм Высоту подъема следует учитывать по вашему росту.
Следует не забывать и о безопасности, поэтому подъемник должен иметь парашютный клапан, предусмотренный в конструкции он предотвращает резкое опускание подъемника.Наш выбор пал на подъемник фирмы ever-eternal спасибо ребятам из shop korch что помогли привезти.
Подготавливаем пол гаража для ножничного подъемника
Полный размер
Проделываем яму в полу нашего гаража
Яму для подъемника нужно делать исходя из размеров вашего подъемника.
Полный размер
Делаем каркас в полу для ножничного подъемника
Полный размер
Заливаем наш каркас и даем высохнуть битону
Полный размер
Убираем не нужное с поверхностей площадки для подъемника
Полный размер
Вставляем подъемник в битоные проемы
Полный размер
Смотрим как все работает=))Не где ли не выпирает ровно ложится в пазы
Смотрим на подъемник ПРИМЕРКА
Измеряем высоту
Полный размер
Замеры, проверка
Полный размер
Кстати вот тут стоит обратить внимание что зубья вернее толщина метала хорошая Главное что переход зубьев имеет 2 зуба, у некоторых подъемников он один
Полный размер
Здесь нагляднее видно
Полный размер
Что дает нам силу.
Полный размер
Внутри нашей силы.На удивление производитель сделал все аккуратно.
Полный размер
Наш маленький счетчик.Предохранители.
И чуть не забыл провода, трубки и т д которые должны выходить от ножничного подъемника, находятся под полом и выведены они через спец водосточную антикорозийную трубу, к сожалению фотографий нету.Так как делал это еще до покупки самого подъемника. После покупки и установки данного подъемника решились миллион проблем, которые раньше были не решаемы и приходилось ехать на СТО.
Ножничные подъемники
Автомобильные ножничные подъемники представляет собой отдельный подвид автоподъемников. За счет своих уникальных преимуществ ножничные автоподъемники оказались крайне востребованными для шиномонтажей, гаражных мастерских и СТО, а также для крупных автосервисов и дилерских станций. Их достаточно часто используют для таких операций как:
- Диагностика и ремонт элементов подвески, рулевой и тормозной системы.
- Замена масла
- Шиномонтажные работы
- Развал-схождение
Ключевая особенность ножничных автомобильных подъемников заключается в их конструкции и принципе работы. В основе этого автоподъемника лежит ножничный механизм.
За счет электрогидравлического привода он синхронно и плавно поднимает платформу, оборудованную трапами или подхватами для автомобиля.
Управление осуществляется при помощи отдельного пульта, что избавляет от необходимости находиться в непосредственной близости от оборудования во время подъема автомобиля.
Главные преимущества автоподъемников ножничного типа
Простая и надежная конструкция автоподъемников ножничного типа позволила данному оборудованию для автосервисов получить ряд преимуществ. В их числе главным образом выделяются следующие:
- Компактность и значительная экономия пространства – ножничные автоподъемники занимают очень мало места, а для еще большей экономии пространства некоторые модели могут быть вмонтированы в уровень пола
- Отсутствие очень строгих требований к покрытию, на котором установлен ножничный автоподъемник
- Хорошая устойчивость и надлежащий уровень безопасности при эксплуатации
- Высокая надежность и простота обслуживания
Ключевые характеристики ножничных подъемников для автомобилей
Перед тем, как купить ножничный автоподъемник, подробно изучите его характеристики. Особенно внимательно отнеситесь к параметрам, приведенным ниже. Именно они решающим образом определяют функциональные возможности данного оборудования.
- Грузоподъемность
- Максимальная высота подъема
- Тип платформы. Она может быть оборудована как трапами, на которые автомобиль заезжает целиком (подхват происходит под пороги), так и поворотными лапами
- Размеры платформы – в частности, ее длина
Специалисты ГаражТулс помогут правильно купить ножничный подъемник для автосервиса или шиномонтажа
Имеются вопросы, связанные с какой-либо моделью ножничного автоподъемника? Не уверены, что она подойдет вам или выбираете наиболее оптимальный вариант из нескольких решений? Задайте свой вопрос техническим специалистам ГаражТулс, получите ответ и сделайте правильный выбор.
Ножничный подъёмник
Как поднять платформу с грузом или строительными рабочими на нужную высоту? Современная гидравлика предлагает эффективные ножничные конструкции, способные в ряде случаев заменить традиционные грузовые краны, лифты, погрузчики, тали и т.п. Достаточно опереть металлическую плиту на рычажную систему, придать ей гидравлический толчок, и плита медленно, но уверенно поползет вверх.
Ножничный подъемник от компании «КУБ» — это надежное оборудование по доступной цене, которое безупречно прослужит Вам много лет. Несложная, но специфическая конструкция даёт очевидные преимущества для потребителя:
- силовую и динамическую надежность;
- компактные габариты по сравнению с другими аналогами сходного назначения;
- повышенные мобильные свойства ножничных подъемников: передвижных и стационарных;
- послушное управление и комфорт для оператора;
- экономия трудовых ресурсов и времени.
Основы устройства и проектировочные типы
В зависимости от возникших в хозяйстве целевых задач, можно заказать ножничный подъемник стационарный, а также самоходный или несамоходный стол-подъемник.
По способу привода в действие мощного механизма можно выделить подъемники ножничные:
- гидравлические;
- электрогидравлические;
- механические.
Для каких бы целей не предназначался гидравлический ножничный подъемный стол, его конструкция должна включать:
- несущую платформу для размещения человека или груза;
- «ножницы» – рычажный узел, задающий характер траекторной динамики;
- гидропривод, запитаный от тока переменной частоты, заставляющий платформу подниматься вверх.
Более сложная конструкция позволяет подъемнику электрогидравлическомудействовать в любых направлениях, вести погрузку-разгрузку даже в условиях, когда на высоком ярусе высота ограничена. При малейшем попадании под плиту каких-либо предметов подъемная платформа упирается в раму безопасности и немедленно останавливается.
Колесное или рельсовое оснащение позволяет легко перемещать ножничный подъемник в любое нужное место на складе, стройплощадке, автосервисе, в цехе и т.д.
В производстве подъемников ножничных для шиномонтажа, для автомобилей, для склада или для строительных целей НИП «КУБ» использует надежные импортные узлы и детали, дополняет комплектацию полезной оснасткой, позволяющей в целях безопасности:
- ограничивать подъемную высоту;
- обеспечивать плавность работы и остановки двигателя;
- регулировать скоростные параметры движения платформы;
- производить аварийное опускание при возникновении внештатной ситуации.
Предварительный проектировочный расчет гидравлического ножничного подъемника и его привязка к реально существующим условиям позволяет нашим разработчикам и технологам найти оптимальную конструкцию и произвести качественное эффективное целевое оборудование, которое положительным образом скажется на вашей прибыли.
Как устанавливается гидравлический ножничный стол
Для установки ножничного подъемника подготавливается база. В её качестве используется фундамент возводимой постройки или выполняется специальный приямок.
При необходимости мы оснастим вашу установку:
- кабиной, закрывающейся с помощью дверей или рольставней;
- дополнительной выкатной плитой;
- откидными, надежно фиксирующимися бортами;
- системой этажного управления, как в лифтах;
- ограждением из сетки;
- индикационной подсветкой.
Индивидуальное проектирование в компании «КУБ» позволяет решать и более сложные задачи!
Выбор подъемника по выходным характеристикам
На этапе проектной разработки любая конструкция тщательно просчитывается, будь она серийная или уникальная. Для контроля и безошибочного выбора в учет принимаются следующие параметры:
- грузоподъемность установки (для подъемников строительных или грузовых вплоть до 10 т);
- максимальный уровень, на который можно поднять стол (до 25 м);
- время, затраченное на подъем под завязку груженой платформы на максимальную высоту;
- потребляемая мощность приводного гидромотора;
- минимальная ступенька платформы от пола;
- габаритные размеры основного стола (ширина вплоть до 6 м, длина вплоть до 10 м);
- габариты выкаткой плиты (длина – 50 см, ширина – 50 см).
Прежде, чем установить подъемник коленчатый, лестничный, подкатной, винтовой, строительный или складской, необходимо также учитывать особенности и параметры фундамента:
- площадь, которую займет установка;
- высоту помещения, где ему предстоит работать;
- массу подъемника, нетто и брутто;
- уклоны поверхностей.
При выборе самоходного мобильного ножничного подъемника дополнительно оцениваются его скоростные возможности движения с открытой стрелой, а также максимально допустимая скорость.
Универсальность и обширные области применения
Гидростолы ножничного типа широко востребованы в промышленно-хозяйственных сферах, где требуется часто поднимать груз или людей.
Без них не обходятся:
- строительство;
- машиностроение;
- техническое обслуживание мостовых, крановых или козловых конструкций;
- установка рекламных щитов;
- отделочные ремонтно-строительные работы (внешние и внутренние);
- мобильные стояночные накопители для авто;
- современное складское хозяйство;
- автосалоны и автосервисы;
- производственные цеха.
Стационарные ножничные подъемники механические (ручные) постепенно уходят в прошлое. Сегодня они не всегда удовлетворяют возросшим запросам современной индустрии. На смену приходят свежие разработки грузовых маневренных гидравлических столов на колесах, которые можно с минимальными усилиями транспортировать в любую нужную зону.
Гидравлическая продукция НИП «КУБ» из России ничем не уступает импортной технике, которую поставляют на наш рынок ведущие производители в сфере ножничных подъемников: Соединенные Штаты (JLG и Genie), Италия (AIRO), Франция (Haulotte).
Наша сертифицированная продукция удовлетворяет высоким нормам европейского стандарта. Реализованные в металл проекты отлично показывают себя на практике.
Сложные климатические условия и пиковые нагрузки ижевским подъемникам не страшны.
Совет
Более того, компания «КУБ» обеспечивает квалифицированный монтаж, обслуживание своих установок, быстро устраняет случившиеся неисправности и дает полную гарантию на свою продукцию и предоставляемые услуги.
Для того, чтобы ножничный подъемник купить, заказать вы может связаться со специалистами компании по телефону +7 (3412) 77-38-68 или обратится в открытый чат.
Гаражные подъемники: особенности и классификация, что нужно знать
Тюнинг > Другое > Гаражные подъемники: особенности и классификация, что нужно знать
Сфера современного автосервиса требует применения новейшего и дорогостоящего оборудования, приспособлений и инструментов, и, конечно же, диктует привлечение специалистов высокой квалификации.
Чаще всего в сервисных центрах, на СТО применяются подъёмники, необходимые для поднятия автомобилей на нужную высоту, позволяющую проведение осмотра, ремонтных работ.
Применение подъёмников в значительной мере облегчает и ускоряет работу специалистов-автомехаников, а также улучшает качество ремонтных работ и обслуживания автомобилей.
Они используются для ремонта кузова, ходовой части, КПП, двигателя, системы торможения, при регулировке развала-схождения, для тюнинговых работ, а также для мелкосрочного ремонта. Подъёмные механизмы обеспечивают плавное, надёжное и равномерное поднятие машины, устойчивое её удержание в одном положении, а затем опускание машины.
Классификация электроподъёмников
Одностоечные подъёмники предназначаются для подъёма транспортных средств с наклоном в одну сторону, причём вес автомобиля не должен превышать 2 тонны.
Подъём осуществляют за пороги или колёса. С помощью одностоечных подъёмников производится плановое ТО, ремонт, антикоррозийные и шиномонтажные работы, мойку днища машин, замену узлов.
Агрегат работает от сети в 220В и 380В.
Двухстоечные автоподъёмники широко распространены благодаря простоте конструкции, состоящей из двух стоек. Каждая стойка оснащена кронштейнами для подъёма. Грузоподъёмность устройства достигает 5,5.
тонн, оно может быть оборудовано электромеханическим или гидравлическим приводом.
Двухстоечные устройства используют при осмотрах автомобилей, выполнения широкого спектра работ: диагностических, шиномонтажных, слесарных, покрасочных и кузовных, для обслуживания системы торможения, трансмиссии, ходовой части, силового агрегата.
Четырёхстоечные электроподъёмники имеют конструкцию, состоящую из четырёх стоек с платформой или связанных между собой трапов для машин.
Автомобиль заезжает по наклонным трапам на платформу, и подъёмник приводится в движение электрогидравлическим или электромеханическим приводом.
Обратите внимание
Такие подъёмники различаются устройством площадки, которая может быть ровной, с фигурными выемками, или иметь ещё и разгрузочную площадку. Применяются эти устройства для самых разных видов ремонтных работ.
Ножничные гидравлические электроподъёмники имеют довольно простые конструкции с платформой, системой рычагов. Установки бывают одноопорные и двухопорные. Одноопорные имеют более компактные размеры.
Ножничный механизм устанавливают в центре. Автомобиль подхватывается за силовые точки. Двухопорные установки оснащаются двумя ножничными механизмами. На них устанавливают трапы с колёсными фиксаторами.
Такие электроподъёмники могут обслуживать и легковой и грузовой транспорт.
По типу привода
Самыми распространёнными видами современных автоподъёмников по типу привода считаются электромеханические и электрогидравлические.
Электрогидравлические автоподъёмники являются более надёжными, имеют значительный эксплуатационный ресурс, отличаются плавным ходом, отсутствием вибраций и низким уровнем шума.
Они достаточно просты в монтаже и наладке, не имеют быстроизнашивающихся частей и обеспечивают оптимальную скорость поднятия и опускания автомобилей.
Ножничные подъемники
Простую и надёжную конструкцию имеют ножничные подъёмники. Они популярны ввиду относительно невысокой стоимости. При этом всего одна секция ножничного механизма способна поднимать грузы на высоту до 2 метров.
Это достаточно мобильный механизм, он подводится под машину только при необходимости, что упрощает требования к полу и фундаменту автомастерской, исключая установку стационарного оборудования.
При подъёме ножничным механизмом кузов автомобиля испытывает равномерную нагрузку. Подъём производится двумя гидроцилиндрами, расположенными на опорах параллельно. Сами гидроцилиндры приводятся в действие электродвигателем, подключенным к электрораспределительной сети.
Средняя мощность устанавливаемых электродвигателей достигает до 1,5 кВт. Работает такое оборудование напрямую от электросети.
Ножничное оборудование оснащено двумя отдельными полозьями, а управление подъёмником осуществляется с помощью проводного пульта.
Безопасность ножничных электроподъёмников обеспечивается за счёт датчиков давления в системе гидропривода. При резкой потере давления срабатывают блокирующие клапаны. В верхнем положении подъёмник блокируется специальным рычагом, что позволяет и экономить электроэнергию. Если электричество не поступает, клапаны перекрывают поступление жидкости от цилиндров.
Различают одноопорные и двухопорные подъёмные механизмы.
Одноопорные механизмы для подъёма (ОПМ) имеют малые габариты, занимают в боксах мало места, поскольку приспособление имеет всего 1 ножничный механизм, располагающийся посередине платформы.
Важно
Такие ОПМ не позволяют работать с большим весом и применяются, в основном, для решения вспомогательных задач. Двухопорные подъёмные механизмы (ДПМ) могут справиться с весом до 2,5 тонн и в сложенном положении занимают минимум места.
Поскольку ножничные автоподъёмники могут одновременно поднимать две платформы, их широко применяют для регулирования схода-развала колёс, углов наклона. Автомобиль при этом на платформе стоит всеми четырьмя колёсами, что позволяет производить все виды кузовных работ. Машина при механическом или физическом воздействии не упадёт.
Гаражные ножничные подъёмники удобны для проведения ремонта ходовой и моторной части. Такая конструкция подъёмника обеспечивает доступ к днищу автомобиля. В яме или эстакаде условия более стеснённые.
Электрические подъёмные механизмы устанавливаются в автосалонах и для подъёма машина на верхние этажи. Некоторые из таких подъёмников оборудуются весовыми механизмами, которые в момент подъёма машины показывают её массу. Модели подъёмников с весами используются в сервисных центрах, выдающих государственные лицензии о проведении технического осмотра автомобилей.












